Milano,
100 m²
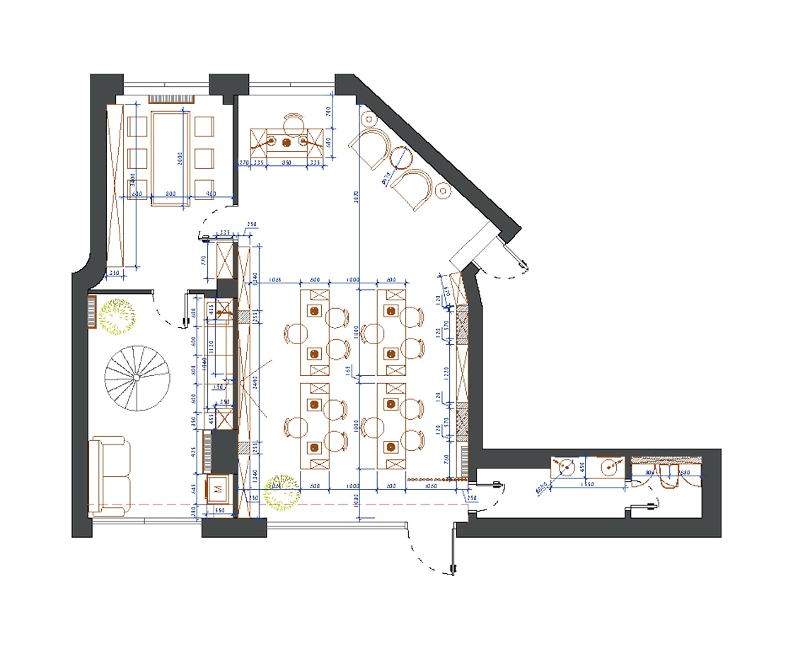
Am creat un spațiu dedicat învățării și dezvoltării profesionale, unde stilul și funcționalitatea se îmbină armonios pentru a inspira viitorii specialiști în nail art.
Layout inteligent: zone bine delimitate pentru cursuri practice, teorie și relaxare.
Estetică modernă și primitoare: paletă de culori calmă, tonuri pastelate și accente elegante care oferă o atmosferă relaxantă și profesională.
Mobilier ergonomic: scaune și mese adaptate pentru confort și eficiență în timpul cursurilor practice.
Iluminat profesional: lumină naturală susținută de corpuri LED cu spectru optim pentru detalii fine și precizie.
Spații de depozitare bine organizate: pentru ustensile, produse și materiale didactice.
Zone de socializare și așteptare: confortabile și stilate, ideale pentru networking și relaxare între cursuri.
Rezultatul: o academie modernă care oferă un mediu ideal pentru dezvoltarea abilităților și pasiunea pentru nail art.
Am creat un spațiu dedicat învățării și dezvoltării profesionale, unde stilul și funcționalitatea se îmbină armonios pentru a inspira viitorii specialiști în nail art.
Layout inteligent: zone bine delimitate pentru cursuri practice, teorie și relaxare.
Estetică modernă și primitoare: paletă de culori calmă, tonuri pastelate și accente elegante care oferă o atmosferă relaxantă și profesională.
Mobilier ergonomic: scaune și mese adaptate pentru confort și eficiență în timpul cursurilor practice.
Iluminat profesional: lumină naturală susținută de corpuri LED cu spectru optim pentru detalii fine și precizie.
Spații de depozitare bine organizate: pentru ustensile, produse și materiale didactice.
Zone de socializare și așteptare: confortabile și stilate, ideale pentru networking și relaxare între cursuri.
Rezultatul: o academie modernă care oferă un mediu ideal pentru dezvoltarea abilităților și pasiunea pentru nail art.
BUCĂTĂRIE
Baie
Recepție
mittig rom
ZONA DE LUCRU
Programează o consultație
Lăsați o cerere — vom discuta despre viitorul dumneavoastră proiect și vom găsi soluția ideală pentru stilul și spațiul dumneavoastră.