România,
160 m²
Proiectul acestui interior este dedicat celor care apreciază rafinamentul, confortul și un stil clasic reinterpretat modern, adaptat nevoilor unui stil de viață matur și echilibrat.
Paletă cromatică caldă, neutră, cu tonuri de bej, crem, gri și accente discrete de maro sau metalice.
Mobilier robust, confortabil, cu design atemporal și finisaje de calitate superioară.
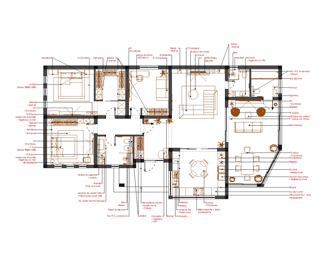
Spații bine compartimentate: living primitor, dining elegant, dormitoare liniștite, birou functional și zone de relaxare.
Texturi și materiale naturale: lemn masiv, piele fină, catifea, piatră și textile naturale.
Iluminat ambiental sofisticat, cu surse variate pentru un confort vizual optim.
Accesorii discrete, dar cu personalitate: tablouri clasice, obiecte decorative cu valoare sentimentală și obiecte de artă.
Rezultatul: o casă care inspiră stabilitate, liniște și bun gust, un refugiu perfect pentru o viață armonioasă.
Proiectul acestui interior este dedicat celor care apreciază rafinamentul, confortul și un stil clasic reinterpretat modern, adaptat nevoilor unui stil de viață matur și echilibrat.
Paletă cromatică caldă, neutră, cu tonuri de bej, crem, gri și accente discrete de maro sau metalice.
Mobilier robust, confortabil, cu design atemporal și finisaje de calitate superioară.
Spații bine compartimentate: living primitor, dining elegant, dormitoare liniștite, birou functional și zone de relaxare.
Texturi și materiale naturale: lemn masiv, piele fină, catifea, piatră și textile naturale.
Iluminat ambiental sofisticat, cu surse variate pentru un confort vizual optim.
Accesorii discrete, dar cu personalitate: tablouri clasice, obiecte decorative cu valoare sentimentală și obiecte de artă.
Rezultatul: o casă care inspiră stabilitate, liniște și bun gust, un refugiu perfect pentru o viață armonioasă.
BUCĂTĂRIE
dormitor 1
dormitor 2
Spațiu de lucru
Baie 1
Baie 2
GARDEROBĂ
terasă
Programează o consultație
Lăsați o cerere — vom discuta despre viitorul dumneavoastră proiect și vom găsi soluția ideală pentru stilul și spațiul dumneavoastră.